物件の特徴
主な設備
電気
給湯
グリル
システムキッチン
バス
ユニットバス
オートバス
バス1坪以上
追焚機能
室内洗濯機置場
洗髪洗面化粧台
洗面所独立
ダウンライト
ディンプルキー
ダブルロックキー
モニタ付インターホン
火災警報器/報知機
複層ガラス
全居室複層ガラス
フローリング
全室フローリング
24時間換気システム
主な特徴
高気密高断熱住宅
2沿線利用可
小学校徒歩10分以内
閑静な住宅街
通風良好
陽当り良好
2階建
建築確認完了検査済証
BELS/省エネ基準適合
即入居可
【内覧ツアー×最安値保証】ネットの物件、すべて当社で紹介可能!交渉力で「理想の価格」を叶えます
当社はハウスドゥ全国大会において、九州エリア売買件数・売上高ともに1位を獲得
売主様への価格交渉も得意です!
九州トップクラスの取引実績に裏打ちされた交渉力で、購入価格を最大限に抑えます♪
他社様でお見積もりを取った後でも大丈夫!もっと安く買えるのでは?そんな悩みは当社が解決します
【内覧ツアー】
熊本県内全域の気になる物件をすべて当社でご内覧いただける『内覧ツアー』を実施中☆
新築・中古・中古マンションも!見学されたい物件を1日で内覧可能♪
窓口を一つに絞れるから、手間も時間もかかりません。
【最安値保証】
\最 安 値 徹 底 宣 言/
他社様よりも必ずお得にご購入いただけることをお約束します
当社ではオプション費用(エアコン、網戸、太陽光等)もお客様に代わり相見積もりします
トータルの費用が100万円以上変わることも!
全国700店舗以上展開!
ハウスドゥだからこその豊富な物件数・情報量でお客様のお家選びをトータルサポートいたします!
物件概要
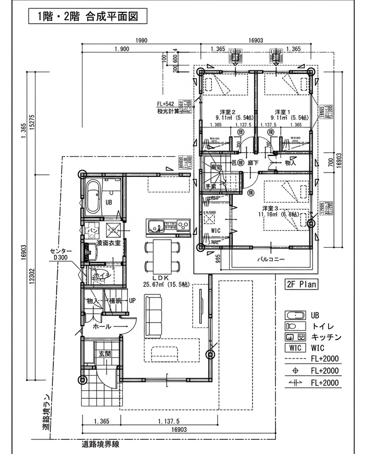
| 価格 | 2,950万円 | 間取り | 3LDK |
|---|---|---|---|
| 物件種別 | 新築一戸建て | ||
| 所在地 | 熊本県天草市小松原町184-27付近 | ||
| アクセス | JR三角線『三角』 車55分(約43.3km) JR鹿児島本線『松橋』 車87分(約66.7km) 『新小松原』 徒歩3分 (約240m) |
||
| 建物面積 | 76.8㎡ | 駐車場 | なし |
| 築年月 | 2025年(令和7年)09月築 | 建築確認 | 天第250003号 |
| 建物構造 | 木造 2階建 | 工法 | |
| 主要採光 | バルコニー | ||
| 保証・評価 | |||
| 土地面積 | 実141.61㎡(42.83坪) | 接道 | |
| 私道 | セットバック | ||
| 地目 | 宅地 | 地勢 | 平坦 |
| 権利 | 所有権 |
||
| 都市計画 | 非線引区域 |
用途地域 | 商業 |
| 建ぺい/容積率 | 80% / 400% | 土地国土法 | |
| 許可番号 | 建築基準法 | ||
| 法令制限 | |||
| 小学区 | 本渡北小学校 徒歩5分 (約400m) | 中学区 | 本渡中学校 徒歩19分 (約1500m) |
| 現況 | 完工済 | 引渡 | 即 |
| その他費用 | |||
| 備考 | |||
| 物件番号 | 4680075 | 取引態様 | 媒介 |































担当エージェント:片山 久瑠実
【月々の支払い例】
3000万円借り入れの場合
月々60,398円(頭金・ボーナス払いなし)
金利0.780%の場合(SBI新生銀行、金利優遇有)
変動金利 返済期間50年
※あくまで一例。条件有。
【周辺環境】